Top.Mail.Ru

Единый центр документов предлагает коммерческие помещения в аренду

Заказать
Связаться с нами
Долгосрочный договор аренды
Долгосрочный договор аренды
Рекламоносители на территории центра
Рекламоносители на территории центра
Партнерские акции
Партнерские акции
Установка вывески на фасаде
Установка вывески на фасаде
Охраняемая территория
Охраняемая территория
Парковка
Парковка

Единый центр документов предлагает помещения в аренду.

Расположение: ул. Красного Текстильщика, 10-12.
Единый центр документов расположен в Центральном районе (ближайшие станции метро: «Площадь Александра Невского», «Площадь Восстания», «Чернышевская», «Новочеркасская»).

Услугами наших арендаторов пользуются клиенты Единого центра документов, сотрудники центра и других организаций, арендующих помещения, жители близлежащих домов.

Максимальная проходимость — до 3 000 человек в день.

Основная аудитория пользуется следующими услугами:

  • Оформление и получение загранпаспорта для себя и своих детей
  • Оформление виз
  • Подача на РВП, ВНЖ, гражданство РФ
  • Сделки с недвижимостью
  • Открытие бизнеса

Где бы хотели арендовать помещение?

При наведении отобразятся доступные площади

Доступные помещения

Лит. Д
1 1 1
Литера Д, первый этаж, 81 м² Адрес: г. Санкт-Петербург, ул. Красного-Текстильщика, д. 10-12, литера Д
Этаж: 1
Площадь: 81 м²
Высота потолков: 3,95 метра
Отделка: чистовая
Электричество: 30 кВт
Лит. У
1 1 1 1
Литера У, второй этаж, 730 м² Адрес: г. Санкт-Петербург, ул. Красного-Текстильщика, д. 10-12, литера У
Этаж: 2
Площадь: 730 м²
Высота потолков: 4,20 метра
Полы: стяжка
Мощность: 70 кВт
Лит. С
1
Литера С, второй этаж, 250 м² Адрес: г. Санкт-Петербург, ул. Красного-Текстильщика, д. 10-12, литера С
Этаж: 2
Планировка: открытая
Отделка: черновая
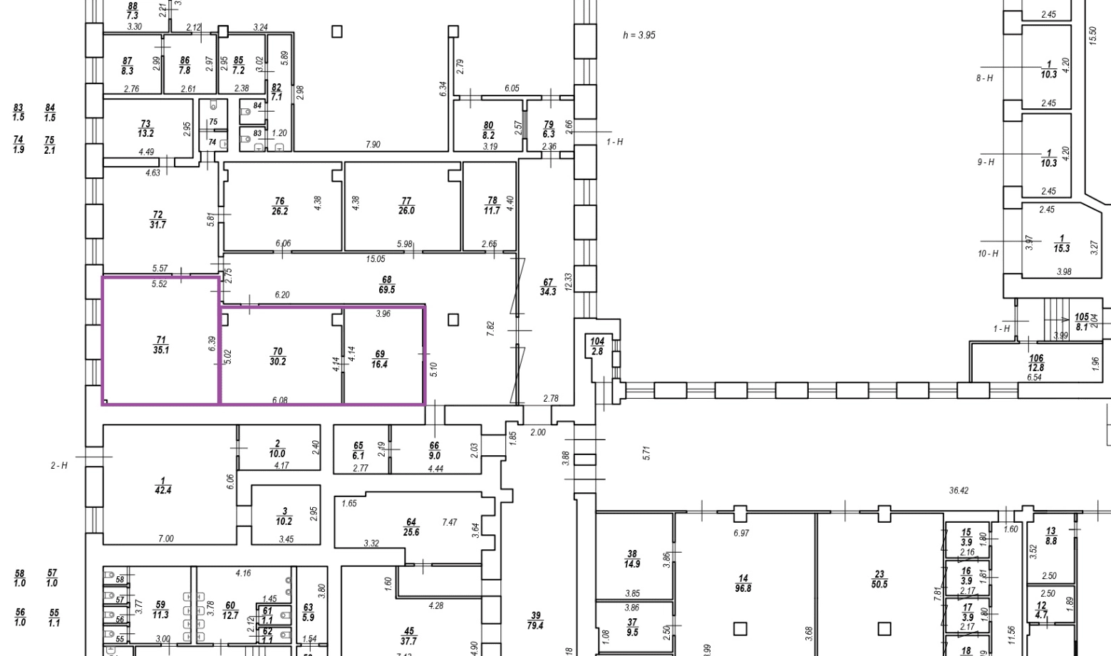
1
Литера С, первый этаж, от 28 м² Адрес: г. Санкт-Петербург, ул. Красного-Текстильщика, д. 10-12, литера С
Этаж: 1
Юридический адрес: предоставляется
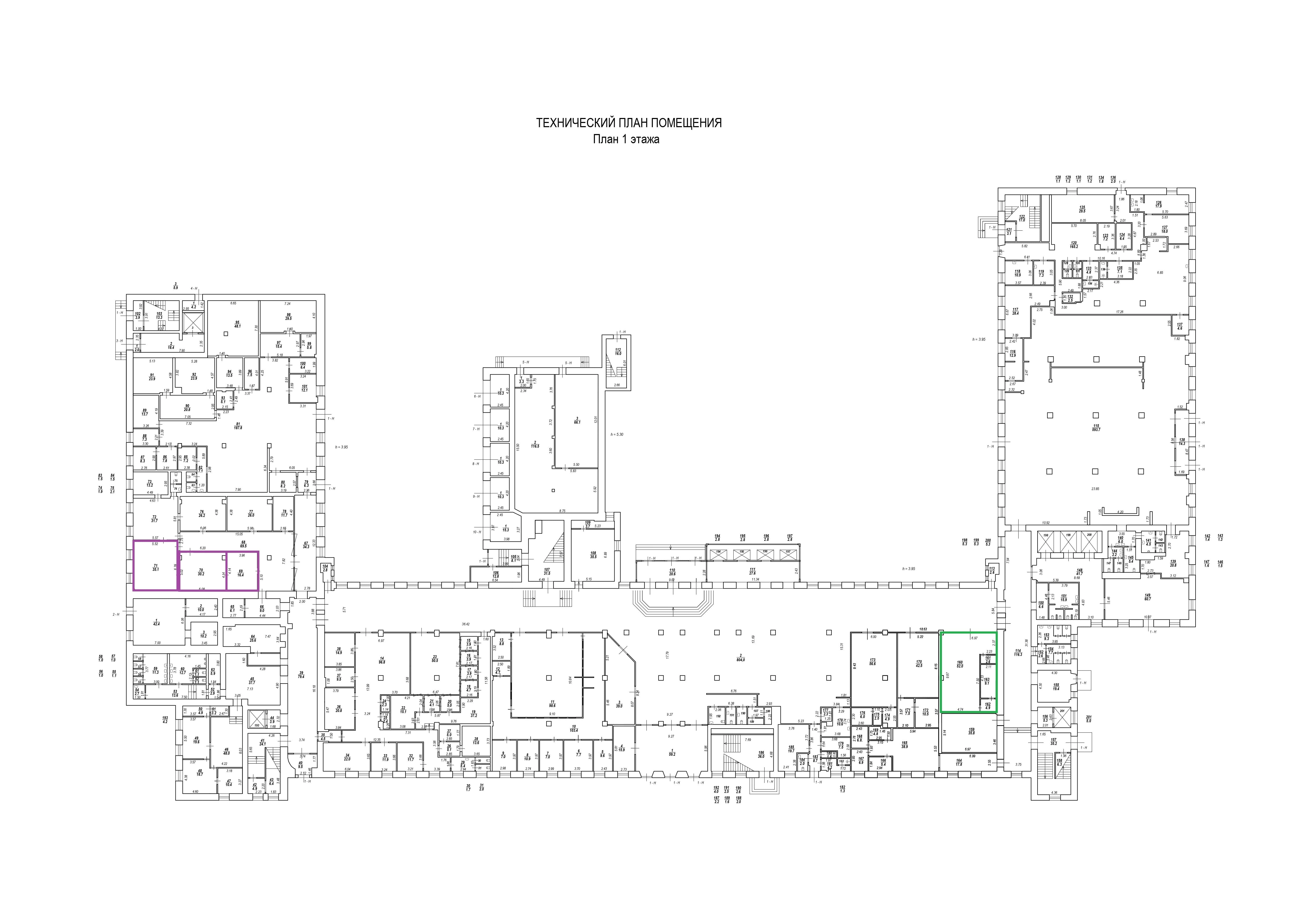
1
Литера С, второй этаж, от 68 м² Адрес: г. Санкт-Петербург, ул. Красного-Текстильщика, д. 10-12, литера С
Этаж: 2
Юридический адрес: предоставляется

Важно!

Заполните форму, чтобы арендовать помещение

Заполните поля, чтобы оставить заявку

Контакты

Санкт-Петербург,ул. Красного Текстильщика, д.10-12

+7 (812) 777-1000

Связаться с нами
Услуги предоставляет ООО «Управляющая компания "Единый центр документов"».
Адрес: 191124, г. Санкт-Петербург, ул. Красного Текстильщика, д. 10-12, литера В, пом. 1-Н, ч.п. 280-287, ИНН 7842212320, ОГРН 1237800007940 Тел. 8 (812) 777-1000
Политика обработки персональных данных ООО «Управляющая компания "Единый центр документов"».

Оставить заявку на аренду помещения

Меню

Войти

Нет учетной записи?
Зарегистрироваться

Регистрация

Вам поступит SMS-код на указанный номер
Уже зарегистрированы?
Войти

Код из смс

Повторно запросить код через 0:59

Последний шаг

Укажите электронную почту и пароль

Восстановление пароля

Введите номер телефона, указанный в аккаунте
Вам поступит SMS-код на указанный номер

Придумайте новый пароль

Придумайте новый пароль

Свяжитесь с нами

или

Заявка отправлена

Вакансия отправлена

Сделки с имуществом по всей России
Сделки с имуществом по всей России
Подробнее
Услуги предоставляет ООО «Единый депозитарный центр». Подробную информацию можно получить по телефону (812) 777-1000 или оставить заявку на обратный звонок.
Реклама. Рекламодатель ООО «Единый депозитарный центр». erid: 2SDnjeP7MDH
Виза в Великобританию: подготовка под ключ
Виза в Великобританию: подготовка под ключ
Подробнее
Услуги по подготовке документов оказывает ООО «Миграционный альянс». Подробную информацию можно получить по телефону (812) 777-1000 или оставить заявку на обратный звонок.
Реклама. Рекламодатель ООО «Миграционный альянс». erid: 2SDnjecrQuE
Получение апостиля на документы в Минюсте
Получение апостиля на документы в Минюсте
Подробнее
Услуги по организации получения документов оказывает ООО «Миграционный альянс». Подробную информацию можно получить по телефону (812) 777-1000 или оставить заявку на обратный звонок.
Реклама. Рекламодатель ООО «Миграционный альянс». erid: 2SDnjbubMLU
Налоговые вычеты 3-НДФЛ
Налоговые вычеты 3-НДФЛ
Подробнее
Услуги предоставляет ООО «Центр юридических услуг». Подробную информацию можно получить по телефону (812) 777-1000 или оставить заявку на обратный звонок.
Реклама. Рекламодатель ООО «Центр юридических услуг». erid: 2SDnjdGCy9r
Электронная регистрация сделки в Росреестре по всей России
Электронная регистрация сделки в Росреестре по всей России
Подробнее
Услуги по подготовке и отправке документов предоставляетООО «Единый депозитарный центр». Подробную информацию можно получить по телефону (812) 777-1000 или оставить заявку на обратный звонок.
Реклама. Рекламодатель ООО «Единый депозитарный центр». erid: 2SDnjdZfQiK
Консульская легализация документов
Консульская легализация документов
Подробнее
Услуги по организации получения документов оказывает ООО «Миграционный альянс». Подробную информацию можно получить по телефону (812) 777-1000 или оставить заявку на обратный звонок.
Реклама. Рекламодатель ООО «Миграционный альянс». erid: 2SDnjeqiRU3
Сейфовые ячейки для ваших ценностей
Сейфовые ячейки для ваших ценностей
Подробнее
Услуги предоставляет ООО «Единый депозитарный центр». Подробную информацию можно получить по телефону (812) 777-1000 или оставить заявку на обратный звонок.
Реклама. Рекламодатель ООО «Единый депозитарный центр». erid: 2SDnjecs5s5
Загранпаспорт под ключ: комплексная подготовка документов
Загранпаспорт под ключ: комплексная подготовка документов
Подробнее
Услуги по подготовке документов оказывает ООО «Солидарность». Подробную информацию можно получить по телефону (812) 777-1000 или оставить заявку на обратный звонок.
Реклама. Рекламодатель ООО «Солидарность». erid: 2SDnjdV8QZu
Снежные горы или теплое море?
Оформи загранпаспорт на 10 лет!
Снежные горы или теплое море? Оформи загранпаспорт на 10 лет!
Подробнее
Услуги по подготовке документов оказывает ООО «Солидарность». Подробную информацию можно получить по телефону (812) 777-1000 или оставить заявку на обратный звонок.
Реклама. Рекламодатель ООО «Солидарность». erid: 2SDnjdSaYeL
Помощь юриста
(консультации, защита в суде)
Помощь юриста (консультации, защита в суде)
Подробнее
Услуги предоставляет ООО «Центр юридических услуг». Подробную информацию можно получить по телефону (812) 777-1000 или оставить заявку на обратный звонок.
Реклама. Рекламодатель ООО «Центр юридических услуг». erid: 2SDnje6nUfh